Attractions of Kyiv-Pechersk Lavra

Did you know that:

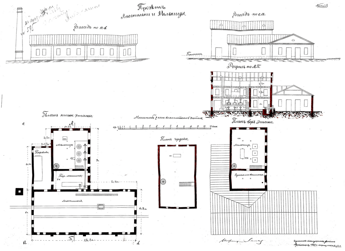
in the late 19th - early 20th centuries Kyiv-Pechersk Lavra owned many manufacturing facilities, including Lavra steam sawmill. In August 1886, members of the Spiritual Council of the monastery decided to liquidate the old water mill that operated on the Lybid River then, lower the pond that appeared there, turn it into a vegetable garden, and begin the procurement of the materials needed to construct monastery’s own steam sawmill that would have drives to flour millstones. It was meant to be installed on the Protva hithe - the area in-between the Lower Lybid and Dnieper Rivers, below the Lysogirsky Fortess. Military engineer Ivan I Lilier was invited to carry out design and construction works. On January 27, 1887, he signed the agreement with Stepan Yakhner, engineer and representative of the «Ortwein, Markowsky, Karasinsky» - machine-building and foundry plant in Warsaw. The agreement gave start to the manufacture, delivery and installation of machines and devices in the sawmill and mill. That same year, the steam sawmill and mill started operating. Until 1891, the construction was used to cut the forest exclusively for the needs of the monastery, and from February 1891 - for the needs of various timber merchants of Kyiv and its suburbs.

 

Captions to illustrations:

1. A fragment of «Lybid House», the plan of the estate owned by Kyiv-Pechersk Lavra with the indication of the proposed construction place for the sawmill and mill (marked with letter D). Copy [Central State Historical Archives of Ukraine in Kyiv (CSHAUK), funds 128, op.1 com., no. 2832, fos. 15]

2. The project of the sawmill and mill [Central State Historical Archives of Ukraine in Kyiv (CSHAUK), funds 128, op.1 com., no. 2832, fos. 25]

3. Part of the general plan of the Lybid country house (indicated objects -
brick factory, steam mill and sawmill) [From the Fund Collection of the National Kyiv-Pechersk Historical and Cultural Preserve]

4. Advertising of the machine equipment factory and «Orthwein, Karasiński and S-ka» foundry [Przegląd Techniczny: tygodnik poświęcony sprawom techniki I przemysłu. – Warszawa, 1915. – T. LIII. – № 1-2. –13 styczniz]

YouTube icon
Facebook icon
Twitter icon